Дома под ключ в Армавире
Отзывы из Яндекс Карт
4.9
76 отзывов
Дополнительные услуги 88%
2 154 оценок
Комплектации 89%
1 535 оценок
Планировки 90%
2 484 оценок
Проекты 93%
2 231 оценок
С
Федор Леонтьев18.05.2025 г.
Спасибо за тёплую и уютную баню, которая стала излюбленным местом отдыха для всей нашей семьи; особенно приятно, что даже спустя год активной эксплуатации в конструкции не появилось ни одной щели или трещины.
Отзывы из Google Карт
4.8
46 отзывов
Дополнительные услуги 88%
2 154 оценок
Комплектации 89%
1 535 оценок
Планировки 90%
2 484 оценок
Проекты 93%
2 231 оценок
С
Арно Ерохин26.02.2025 г.
Считаю, что мне повезло найти таких ответственных подрядчиков. Строительство бани из бруса велось под ключ, и я смог полностью довериться профессионалам. Ни разу не пришлось переделывать или исправлять, всё сделано идеально. Теперь это место силы для всей нашей семьи.
Отзывы из 2гис
4.9
43 отзывов
Дополнительные услуги 88%
2 154 оценок
Комплектации 89%
1 535 оценок
Планировки 90%
2 484 оценок
Проекты 93%
2 231 оценок
С
Емельян Зюганов02.08.2025 г.
Сомневался нас каркасной технологии, но менеджеры компании доходчиво объяснили все плюсы и современные решения. Результат превзошел ожидания: дом теплый, очень легкий и уютный. Строительная бригада работала быстро, аккуратно и не оставила после себя ни соринки.


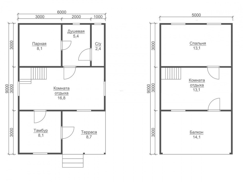
Проект №11 Каркасная баня 6х9

каркас из строганой доски
Создайте свой план для этого проекта
и отправьте его нам на расчет в один клик.
Каркасный дом (150 мм) 6х9 Толщина утепления 150 мм 2786200 Заказать
Каркасный дом (200 мм) 6х9 Толщина утепления 200 мм 2976200 Заказать

Доставка включена в стоимость дома!

Для того, чтобы получить личную планировку, воспользуйтесь планировщиком.

При помощи планировщика вы сможете создавать планы, эскизы, чертежи, схемы уникальной бани с мансардой, эркером, с требуемым количеством комнат. Таким образом получится персональный проект, который отвечает вашим требованиям.

Вы можете выбрать определенный вид кровли. Крышу можно сделать двускатной, четырехскатной и вальмовой. Двухскатная крыша - особенно популярна в малометражных постройках.

Самые популярные размеры бань сегодня: мини - до 36м2 (в основном, одноэтажные); компактные - от 36 до 70 квадратных метров (обычно 2х этажные); большие - от 70 м2 и больше.


Наши работы

Перейти в галерею


Комплектация

Площадь застройки: 54 м2
Длина: 6 м
Ширина: 9 м
Общая площадь: 91 м2
Исполнение Под ключ (с отделкой)
Фундамент Свайно-винтовой или ж/б сваи (рассчитываются отдельно).
Гидроизоляция фундамента Рубероид в два слоя.
Основание (обвязка) Из обрезного бруса 150х150 мм. 150х200 мм. согласно выбранной толщине утепления. Торцевая строганая доска камерной сушки 45х145/45х195+/-5 мм. Обработка антисептиком.
Цокольное перекрытие Строганая доска камерной сушки 45х145/45х195+/-5 мм. с шагом 590 мм. Обработка антисептиком.
Пол черновой Обрезная доска камерной сушки 20х100 мм.
Влаго-ветрозащита чернового пола Мембрана Ондутис А100.
Внешние стены Стойки каркаса из строганой доски камерной сушки 45х145/45х195+/-5 мм. с шагом 590 мм. Верхняя двойная и нижняя обвязки из строганой доски камерной сушки 45х145/45х195+/-5 мм. Разгрузочный ригель из строганой доски 45х145+/-5 мм. Укосины из строганой доски 20х95 мм.
Перегородки Стойки каркаса из строганой доски камерной сушки 45х95+/-5 мм. с шагом 590 мм. Верхняя двойная и нижняя обвязки из строганой доски 45х95+/-5 мм. Разгрузочный ригель из строганой доски камерной сушки 45х145+/-5 мм. Укосины из строганой доски камерной сушки 20х95 мм.
Сборка каркаса На гвозди.
Высота от пола до потолка Баня одноэтажная: 2,5 м. Баня с мансардой: 1-ый этаж- 2,5 м.
2-ой этаж (мансарда)- 2,3 м.
Баня в полтора и два этажа:
1-ый этаж 2,5 м.
2-ой этаж 2,4 м. в полутораэтажной бане.
2,5 м. в двухэтажной бане.
Внешняя отделка стен Имитация бруса камерной сушки, сорт АВ, толщиной 17 мм. Монтаж через строганый брусок камерной сушки 45х45+/-5 мм. (вентилируемый фасад). Влаго-ветрозащитная мембрана- Ондутис А100.
Внутренняя отделка стен, перегородок Евровагонка камерной сушки, сорт АВ, толщиной 12,5 мм. по строганой рейке 20х40+/-5 мм. либо ГКЛ 12,5 мм.
Отделка потолка Евровагонка камерной сушки, сорт АВ, толщиной 12,5 мм. по строганой рейке 20х40+/-5 мм. либо ГКЛ 12,5 мм.
Пол чистовой Шпунтованная доска камерной сушки толщиной 35-36 мм. сорт АВ. по строганой рейке 20х40+/-5 мм. либо шпунтованная ДСП 16 мм. по разряженной обрешётке из строганой доски камерной сушки 20х95+/-5 мм.
Утепление (пол, потолок) Минеральная вата Knauf 150/200 мм. согласно выбранной толщине утепления.
Утепление стен Плитный утеплитель Rockwool, толщиной 150/200 мм. согласно выбранной толщине утепления.
Звукоизоляция перегородок Плитный утеплитель Rockwool, толщиной 100 мм.
Пароизоляция (стены, перегородки, пол, потолок) Плёнка Ондутис R70. Дополнительная герметизация нахлёстов/примыканий пароизоляционной плёнки клейкой лентой Delta.
Отделка парной Отделка осиновой вагонкой камерной сушки, сорт АВ по фольге, через строганую рейку 20х40+/-5 мм. (вентиляционный зазор). Установка пологов из осины.
Окна Двухкамерные стеклопакеты ПВХ белого цвета, профиль 60 мм. В комплекте: отливы, подоконники, москитные сетки.
Двери Входная- металлическая, утеплённая (Россия). Межкомнатные- филёнчатые. В душевую/парную- клиновые (банные).
Наличники на окна и двери Наличник деревянный, строганый, камерной сушки 70-90 мм. с двух сторон.
Лестница (при наличии второго этажа) Деревянная, одно или двухмаршевая. Перила- заводские резные, балясины- заводские точеные, устанавливаются стартовые точёные столбы. Ступени 40х200 мм. Тетива лестницы- 90х140 мм.
Крыша Двускатная, ломаная или вальмовая в соответствии с проектом.
Стропильная система Выполнена из строганой доски камерной сушки 45х145/45х195+/-5 мм. Шаг установки стропил 590 мм.
Обрешётка Выполняется из строганой доски камерной сушки толщиной 20х95+/-5 мм. Шаг крепления обрешетки 350 мм. Контробрешётка выполняется из строганого бруска камерной сушки 45х45+/-5 мм. Крепится по стропилам (вентиляционный зазор).
Подкровельная мембрана Ондутис А100
Кровельное покрытие (на выбор) Металлочерепица 0,45 мм. Цвет на выбор.
Фронтоны (при наличии) Каркас из строганой доски камерной сушки 45х145/45х195+/-5 мм. Обшиваются имитацией бруса камерной сушки, сорт АВ, толщиной 17 мм. Монтаж через строганый брусок камерной сушки 45х45+/-5 мм. (вентилируемый фасад). Влаго-ветрозащитная мембрана- Ондутис А100. Монтаж вентиляционных решёток.
Свесы крыши Ширина 400 мм. Подшиваются вагонкой камерной сушки, сорт АВ.
Терраса/балкон (при наличии) Устанавливаются опорные столбы из строганного бруса камерной сушки 140х140 мм.
Отделка потолка террасы/балкона Евровагонка камерной сушки толщиной 12,5 мм. сорт АВ.
Пол террасы/балкона Шпунтованная доска камерной сушки толщиной 35-36 мм. сорт АВ.
Ограждение террасы/балкона Перила- строганая доска. Балясины- точеные, фигурные. Либо ограждение в скандинавском стиле. Устанавливаются ступени у входа.
Допуск на геометрические параметры Составляет +/- 50 мм по длине с каждой стороны.
Допускается стыковка имитации бруса, вагонки и половой доски По всему периметру стен бани (если ширина и длина бани более 6,0 метров). Вагонки и доски пола в каждой отдельной комнате.
Допуски по имитации бруса, вагонке, доске +/- 5 мм.
В стоимость включена Доставка комплекта материала в радиусе 500 км. от г. Пестова Новгородской области и сборка дома на вашем участке.
Гарантия 5 лет.
Печь По запросу.
Бытовка строительная 2,0х3,0 м. каркасно-щитовая. Стоимость 23000 руб. Остаётся на участке Заказчика.
Туалет 1,0х1,0 м. каркасно-щитовой. Стоимость 12000 руб. Остаётся на участке Заказчика.
Генератор Стоимость аренды на весь срок строительства 15000 руб. ГСМ за счёт Заказчика.

Сооружение бани производится в нескольких вариантах: полностью под ключ и под усадку, когда дом будет отстаиваться в течение определенного времени.

В зимнее время года надежнее строить баню в мороз, чтобы каркас не отсырел, летом - не в дождливую.

Оптимальными для дачи или сада являются малобюджетные баньки на винтовых сваях, на нашем сайте вы увидите одноэтажные и полуторатажные бани.

Мы можем предложить 2 размера утепления: 200 мм и 150 мм. Каркасные бани с утеплителем сто пятьдесят миллиметров получаются дешевле, но менее энергоэффективными.

Дополнительные услуги



Популярные проекты


Дома из бруса с мансардой Каркасные дома 7х9 Маленькие бани из бруса
Дома из бруса

Заказать или задать вопрос



Заказать или задать вопрос

Заказать звонок