Дома под ключ в Армавире
Отзывы из Яндекс Карт
4.9
98 отзывов
Дополнительные услуги 88%
2 154 оценок
Комплектации 89%
1 535 оценок
Планировки 90%
2 484 оценок
Проекты 93%
2 231 оценок
С
Алевтина О.22.07.2025 г.
Проект бани был выполнен с учётом моих предпочтений — добавили большое окно в парной и удобную раздевалку, что делает процесс купания ещё приятнее.
Отзывы из Google Карт
4.8
59 отзывов
Дополнительные услуги 88%
2 154 оценок
Комплектации 89%
1 535 оценок
Планировки 90%
2 484 оценок
Проекты 93%
2 231 оценок
С
Габриэлла Баженова22.03.2025 г.
Хочу отметить безупречную работу менеджера Павла, который сопровождал наш проект от первой консультации до сдачи ключей. Он всегда был на связи, оперативно решал возникающие вопросы и давал грамотные советы. Дом из бруса построен с учетом всех наших пожеланий, и мы уже успели отметить в нем новоселье.
Отзывы из 2гис
4.9
43 отзывов
Дополнительные услуги 88%
2 154 оценок
Комплектации 89%
1 535 оценок
Планировки 90%
2 484 оценок
Проекты 93%
2 231 оценок
С
Аэлита Кошелева06.04.2025 г.
Желаю вашей компании процветания и побольше благодарных клиентов, таких как мы, которые по достоинству могут оценить ваш серьезный подход к работе и прекрасный результат.


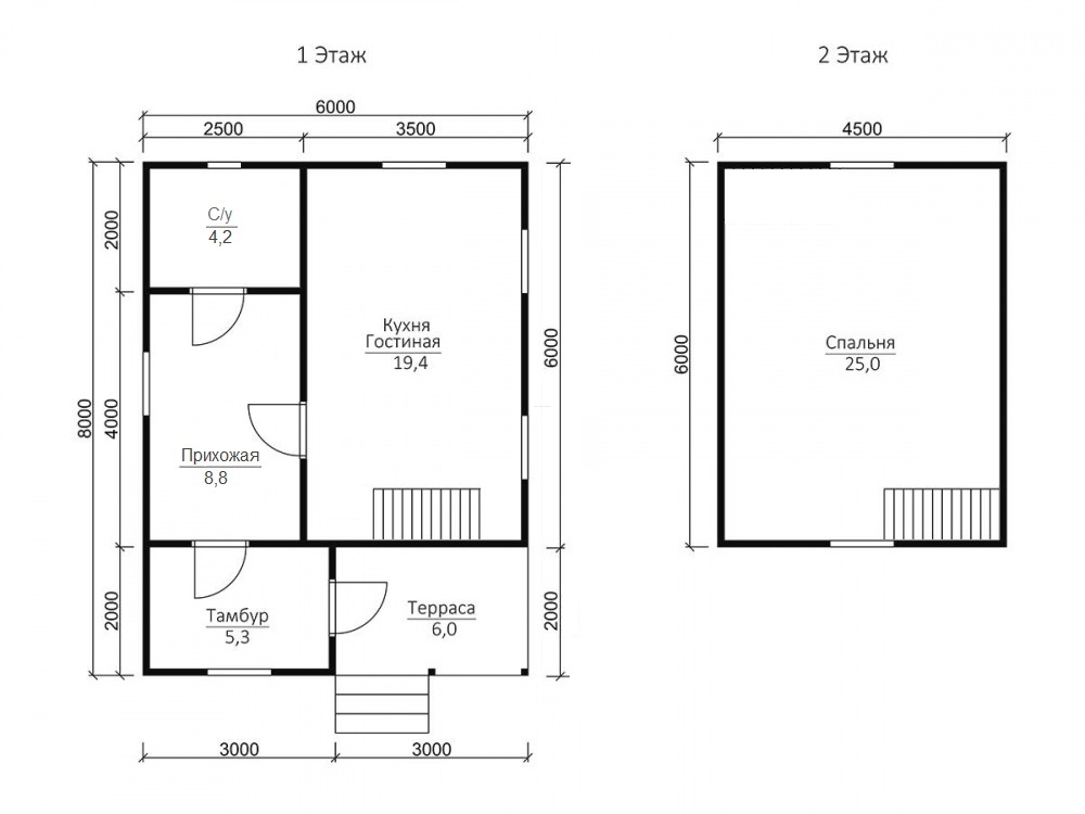
Проект №21 Дом с мансардой 6х8

каркас из строганой доски
Создайте свой план для этого проекта
и отправьте его нам на расчет в один клик.
Каркасный дом (150 мм) 6х8 Толщина утепления 150 мм 2084200 Заказать
Каркасный дом (200 мм) 6х8 Толщина утепления 200 мм 2254200 Заказать

Доставка включена в стоимость дома!

Воспользуйтесь нашим планировщиком для того, чтобы получить свою уникальную планировку.

При помощи планировщика можно создавать подходящие схемы, эскизы, чертежи, планы дома с эркером, мансардой, с требуемым числом комнат. Вы сможете получить проект с современной планировкой, который отвечает вашим запросам.

Вы сможете подобрать определенный тип крыши: двускатная, четырехскатная и вальмовая. Двухскатная крыша считается особенно востребованной в малометражных постройках.

Самые востребованные размеры на сегодняшний день: мини - до 50 м2 (чаще всего, 1 этажные дома); компактные - от 70м2 до 100 квадратов (обычно двухэтажные); большие - начиная от 150 квадратных метров и более.

Строим дуплексы - большие современные каркасные постройки с 2-мя входами, рассчитанные на две семьи. Такие дома строятся сразу для нескольких хозяев и разделены на две части, для обоих половин - отдельный вход.


Наши работы

Перейти в галерею


Комплектация

Площадь застройки: 48 м2
Длина: 6 м
Ширина: 8 м
Общая площадь: 64.3 м2
Исполнение Под ключ (с отделкой)
Фундамент Свайно-винтовой или ж/б сваи (рассчитываются отдельно).
Гидроизоляция фундамента Рубероид в два слоя.
Основание (обвязка) Из обрезного бруса 150х150 мм. 150х200 мм. согласно выбранной толщине утепления. Торцевая доска строганая 45х145/45х195+/-5 мм. согласно выбранной толщине утепления. Обработка антисептиком.
Цокольное перекрытие Строганая доска камерной сушки 45х145/45х195+/-5 мм. с шагом 590 мм. Обработка антисептиком.
Пол черновой Обрезная доска камерной сушки 20х100 мм.
Влаго-ветрозащита чернового пола Мембрана Ондутис А100.
Внешние стены Стойки каркаса из строганой доски камерной сушки 45х145/45х195+/-5 мм. с шагом 590 мм. Верхняя двойная и нижняя обвязки из строганой доски камерной сушки 45х145/45х195+/-5 мм. Разгрузочный ригель из строганой доски 45х145+/-5 мм. Укосины из строганой доски 20х95 мм.
Перегородки Стойки каркаса из строганой доски камерной сушки 45х95+/-5 мм. с шагом 590 мм. Верхняя двойная и нижняя обвязки из строганой доски 45х95+/-5 мм. Разгрузочный ригель из строганой доски камерной сушки 45х145+/-5 мм. Укосины из строганой доски камерной сушки 20х95 мм.
Сборка каркаса На гвозди.
Высота от пола до потолка Дом одноэтажный: 2,5 м. Дом с мансардой: 1-ый этаж- 2,5 м.
2-ой этаж (мансарда)- 2,3 м.
Дом в полтора и два этажа:
1-ый этаж 2,5 м.
2-ой этаж 2,4 м. в полутораэтажном доме
2,5 м. в двухэтажном доме.
Внешняя отделка стен Имитация бруса камерной сушки, сорт АВ, толщиной 17 мм. Монтаж через строганый брусок камерной сушки 45х45+/-5 мм. (вентилируемый фасад). Влаго-ветрозащитная мембрана- Ондутис А100.
Внутренняя отделка стен, перегородок Евровагонка камерной сушки, сорт АВ, толщиной 12,5 мм. по строганой рейке 20х40+/-5 мм. либо ГКЛ 12,5 мм.
Отделка потолка Евровагонка камерной сушки, сорт АВ толщиной, 12,5 мм. по строганой рейке 20х40+/-5 мм. либо ГКЛ 12,5 мм.
Пол чистовой Шпунтованная доска камерной сушки толщиной 35-36 мм. сорт АВ. по строганой рейке 20х40+/-5 мм. либо шпунтованная ДСП 16 мм. по разряженной обрешётке из строганой доски камерной сушки 20х95+/-5 мм.
Утепление (пол, потолок) Минеральная вата Knauf 150/200 мм. согласно выбранной толщине утепления.
Утепление стен Плитный утеплитель Rockwool, толщиной 150/200 мм. согласно выбранной толщине утепления.
Звукоизоляция перегородок Плитный утеплитель Rockwool, толщиной 100 мм.
Пароизоляция (стены, перегородки, пол, потолок) Плёнка Ондутис R70. Дополнительная герметизация нахлёстов/примыканий пароизоляционной плёнки клейкой лентой Delta.
Окна Двухкамерные стеклопакеты ПВХ белого цвета, профиль 60 мм. В комплекте: отливы, подоконники, москитные сетки.
Двери Входная- металлическая, утеплённая (Россия). Межкомнатные- филёнчатые.
Наличники на окна и двери Наличник деревянный, строганый, камерной сушки 70-90 мм. с двух сторон.
Лестница (при наличии второго этажа) Деревянная, одно или двухмаршевая. Перила- заводские резные, балясины- заводские точеные, устанавливаются стартовые точёные столбы. Ступени 40х200 мм. Тетива лестницы- 90х140 мм.
Крыша Двускатная, ломаная или вальмовая в соответствии с проектом.
Стропильная система Выполнена из строганой доски камерной сушки 45х145/45х195+/-5 мм. Шаг установки стропил 590 мм.
Обрешётка Выполняется из строганой доски камерной сушки толщиной 20х95+/-5 мм. Шаг крепления обрешетки 350 мм. Контробрешётка выполняется из строганого бруска камерной сушки 45х45+/-5 мм. Крепится по стропилам (вентиляционный зазор).
Подкровельная мембрана Ондутис А100
Кровельное покрытие (на выбор) Металлочерепица 0,45 мм. Цвет на выбор.
Фронтоны (при наличии) Каркас из строганой доски камерной сушки 45х145/45х195+/-5 мм. Обшиваются имитацией бруса камерной сушки, сорт АВ, толщиной 17 мм. Монтаж через строганый брусок камерной сушки 45х45+/-5 мм. (вентилируемый фасад). Влаго-ветрозащитная мембрана- Ондутис А100. Монтаж вентиляционных решёток.
Свесы крыши Ширина 400 мм. Подшиваются вагонкой камерной сушки, сорт АВ.
Терраса/балкон (при наличии) Устанавливаются опорные столбы из строганного бруса камерной сушки 140х140 мм.
Отделка потолка террасы/балкона Евровагонка камерной сушки толщиной 12,5 мм. сорт АВ.
Пол террасы/балкона Шпунтованная доска камерной сушки толщиной 35-36 мм. сорт АВ.
Ограждение террасы/балкона Перила- строганая доска. Балясины- точеные, фигурные. Либо ограждение в скандинавском стиле. Устанавливаются ступени у входа.
Допуск на геометрические параметры Составляет +/- 50 мм по длине с каждой стороны.
Допускается стыковка имитации бруса, вагонки и половой доски По всему периметру стен дома (если ширина и длина дома более 6,0 метров). Вагонки и доски пола в каждой отдельной комнате.
Допуски по имитации бруса, вагонке, доске +/- 5 мм.
В стоимость включена Доставка комплекта материала в радиусе 500 км. от г. Пестова Новгородской области и сборка дома на вашем участке.
Гарантия 5 лет.
Бытовка строительная 2,0х3,0 м. каркасно-щитовая. Стоимость 23000 руб. Остаётся на участке Заказчика.
Туалет 1,0х1,0 м. каркасно-щитовой. Стоимость 12000 руб. Остаётся на участке Заказчика.
Генератор Стоимость аренды на весь срок строительства 15000 руб. ГСМ за счёт Заказчика.

Сооружение каркасных домов выполняется в нескольких видах: под ключ и под усадку, когда дом будет отстаиваться в течение определенного времени.

Зимой лучше всего строить в морозную погоду, чтобы каркас не промок, летом - не в дождливую.

Максимально подходящими для дачи или сада считают малобюджетные дома на винтовых сваях, на нашем сайте вы увидите одноэтажные и полуторатажные варианты домов.

При условии, что вы планируете проживать постоянно, советуем теплые дома на ленточных и плитных фундаментах.

Имеется 2 вида утепления: 200 мм и 150 мм. Каркасные дома с утеплителем 150 миллиметров получаются дешевле, но не настолько энергоэффективными.

Дополнительные услуги


Каркасный дом , по чертежу 21 полутораэтажный с теплоизолированной двускатной кровлей, отличается экологической безопасностью, в связи с использованием стружчатых плит, теплоизоляционной ваты, а это обеспечивает замечательную термоизоляцию, замечательный микроклимат в доме. Параметры постройки составляют 6х8 м., общая жилая площадь - 64.3 кв.м.. Наша организация в кратчайшие сроки возведет каркасный дом по индивидуальному или типовому чертежу в Армавире в удобное для вас время года и на выбранном вами варианте грунта.

Популярные проекты


Дома из бруса 8х9 Каркасные дома 4х10 Каркасные дома с террасой
хит продаж
Тип: с балконом, с маленькой террасой
Общая площадь: 2
2810000
от 2676200
хит продаж
Тип: с балконом, с маленькой террасой
Общая площадь: 2
2673500
от 2546200
хит продаж
Тип: с балконом, с маленькой террасой
Общая площадь: 2
1883900
от 1794200
Дома из бруса

Заказать или задать вопрос



Заказать или задать вопрос

Заказать звонок